Appartamento 6 vani 186mq

Dati annuncio : Sale Appartamento, Ragusa
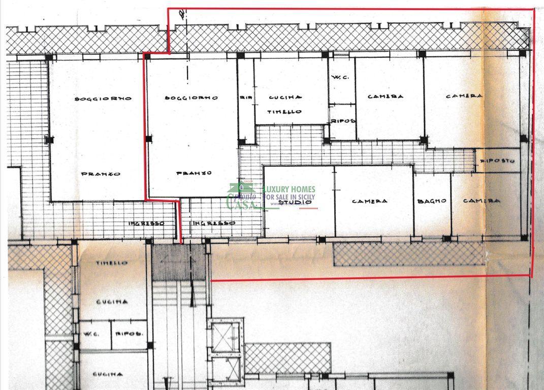
La Pronto Casa Group vende, in via Risorgimento, ampio appartamento di circa 185 mq, situato al terzo piano di un elegante complesso condominiale signorile, servito da ascensore.
L’immobile gode di una doppia esposizione est-ovest, che garantisce una splendida luminosità naturale durante tutto l’arco della giornata.
CARATTERISTICHE PRINCIPALI:
- Ampio ingresso;
- Spazioso living, ideale per momenti di relax;
- Studio riservato, perfetto per chi necessita di uno spazio dedicato al lavoro o allo studio;
- Cucina abitabile con annessa dispensa, funzionale e ben organizzata;
- Lavanderia/doppio servizio;
- Due camere da letto matrimoniali, ampie e luminose;
- Una cameretta;
- Servizio principale;
Quasi tutta la superficie della casa presenta un’elegante pavimentazione in marmo, che dona prestigio e raffinatezza agli ambienti.
PERTINENZE:
- Ampi balconi su lati paralleli, ideali per vivere anche gli spazi esterni;
- Riscaldamento autonomo a metano;
- Doppi infissi;
- Due posti auto assegnati all’interno del box condominiale;
- Prospetto esterno in buono stato;
- Contesto condominiale curato e tranquillo.
Questa soluzione rappresenta un’opportunità unica sia per chi è alla ricerca di un’abitazione spaziosa, ben distribuita e collocata in una delle zone più servite della città, sia per chi desidera frazionarlo in due trilocali distinti, ideali per uso investimento o soluzione genitori/figli.
Richiedi una consulenza gratuita sul credito - Pronto Casa Area Mutui by Integra Finance (OAM n°118).
Per ulteriori info contattare l’Agenzia 1 di Ragusa al numero 0932 257603 oppure visitare il nostro sito.
- ProposalI offer
- ContractSale
- Price€99,000.00
- Rooms6
- Plan3
- Total square meters186
- Rooms4
- Bath2
- Energetic classE
- StateBuono stato
- LiftSi
- KitchenCucina abitabile
- Property typeAppartamento
- ProvinceRagusa
- CommonRagusa
- Date05-11-2025 06:00:13
- CodeEa-3c2532











